Teulada Moraira podría contar en un futuro próximo con un Centro Integrado de Seguridad y Emergencia
El pleno en Teulada ha aprobado la petición al Gobierno Provincial de un importante proyecto como sería la creación de un Centro Integrado de Seguridad y Emergencia, valorado en 600.000 euros.
La aprobación esta mañana durante la sesión plenaria para solicitar a la Diputación de Alicante del proyecto para crear un Centro Integrado de Seguridad y Emergencia en Teulada Moraira, ha sido aprobado con los votos de todos los partidos a excepción de Compromís que ha votado en contra.
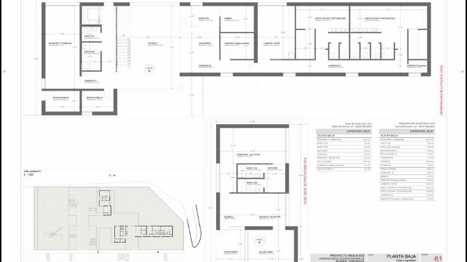
La adecuación de estas instalaciones por parte del área de gobierno de Seguridad al municipio se apoyaría en un desarrollo tecnológico de gran envergadura que haría uso de la tecnología más puntera en el ámbito de los sistemas de las telecomunicaciones.
Entre otros aspectos el Centro Principal podría contar con un área específica de tratamientos de emergencia, así como el uso de herramientas GIS, esto es: informática municipal, administración electrónica, seguridad de los sistemas de información; protección de datos personales, redes de comunicaciones, ingeniería del software; metodología Métrica y Gestión de proyectos y dirección de grupos de trabajo entre otras. De igual modo contaría con un sistema de centralización de vídeo o la puesta en marcha de aplicaciones de movilidad, mapas de riesgo, planificación de servicios y la implantación de un cuadro de mando. Las comunicaciones delicadas contarían con un protocolo de radio digital troncalizado que mantiene protocolos de comunicación que usamos todos los días (entre ellos, el protocolo GSM para celulares), pensado especialmente para usuarios PMR (Professional Mobile Radio – Radio Profesional Móvil), especialmente para usos en agencias gubernamentales, seguridad pública (policías, bomberos y ambulancias), servicios de emergencia, etc., además de contar con la última tecnología GSM/GPRS/UMTS y WIMAX (una norma de transmisión de datos que utiliza las ondas de radio en las frecuencias de 2,5 a 5,8 GHz y puede tener una cobertura de hasta 50 km) sin olvidar la accesibilidad a las Redes Satelitales.
Como dato a tener en cuenta este CISETM (Centro Integrado de Seguridad y Emergencia en Teulada Moraira) contaría con un helipuerto para los casos de necesidad.
Según los datos aportados durante la celebración del pleno por el alcalde de del municipio, Carlos Linares, tendría un coste valorado en 600.000 euros que sería cofinanciado por el Gobierno Provincial (65%) y el Ayuntamiento (35%).
![[Img #26727]](upload/img/periodico/img_26727.jpg)
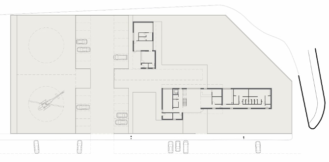
La ubicación prevista sería adyacente a la rotonda de acceso al Polígono Industrial.
La aprobación esta mañana durante la sesión plenaria para solicitar a la Diputación de Alicante del proyecto para crear un Centro Integrado de Seguridad y Emergencia en Teulada Moraira, ha sido aprobado con los votos de todos los partidos a excepción de Compromís que ha votado en contra.
La adecuación de estas instalaciones por parte del área de gobierno de Seguridad al municipio se apoyaría en un desarrollo tecnológico de gran envergadura que haría uso de la tecnología más puntera en el ámbito de los sistemas de las telecomunicaciones.
Entre otros aspectos el Centro Principal podría contar con un área específica de tratamientos de emergencia, así como el uso de herramientas GIS, esto es: informática municipal, administración electrónica, seguridad de los sistemas de información; protección de datos personales, redes de comunicaciones, ingeniería del software; metodología Métrica y Gestión de proyectos y dirección de grupos de trabajo entre otras. De igual modo contaría con un sistema de centralización de vídeo o la puesta en marcha de aplicaciones de movilidad, mapas de riesgo, planificación de servicios y la implantación de un cuadro de mando. Las comunicaciones delicadas contarían con un protocolo de radio digital troncalizado que mantiene protocolos de comunicación que usamos todos los días (entre ellos, el protocolo GSM para celulares), pensado especialmente para usuarios PMR (Professional Mobile Radio – Radio Profesional Móvil), especialmente para usos en agencias gubernamentales, seguridad pública (policías, bomberos y ambulancias), servicios de emergencia, etc., además de contar con la última tecnología GSM/GPRS/UMTS y WIMAX (una norma de transmisión de datos que utiliza las ondas de radio en las frecuencias de 2,5 a 5,8 GHz y puede tener una cobertura de hasta 50 km) sin olvidar la accesibilidad a las Redes Satelitales.
Como dato a tener en cuenta este CISETM (Centro Integrado de Seguridad y Emergencia en Teulada Moraira) contaría con un helipuerto para los casos de necesidad.
Según los datos aportados durante la celebración del pleno por el alcalde de del municipio, Carlos Linares, tendría un coste valorado en 600.000 euros que sería cofinanciado por el Gobierno Provincial (65%) y el Ayuntamiento (35%).
![[Img #26727]](upload/img/periodico/img_26727.jpg)
La ubicación prevista sería adyacente a la rotonda de acceso al Polígono Industrial.

























quino | Martes, 26 de Julio de 2016 a las 07:30:14 horas
Para cuando una piscina cubierta??
Accede para votar (0) (0) Accede para responder